Dieckhoffsfeld
Wir bauen in zentrumsnaher und ruhiger Stadtlage 10 hochwertige, barrierearme Eigentumswohnungen. Das Haus wird nach KfW 70-Standard gebaut.
Mit dem Aufzug gelangen Sie problemlos in die entsprechende Etage zu Ihrer Wohnung. Mit einer Video-Türsprechanlage im Eingangsbereich sorgen wir für mehr Sicherheit im Haus.
Ein separater Abstellraum im Erdgeschoss bietet Ihnen die Möglichkeit Kinderwagen, Rollator etc. sicher einzuschließen. Für Fahrräder bieten wir ihnen einen eigenen Unterstand im Hof an.
Ausstattung
Alle Wohnungen werden mit einer Fußbodenheizung ausgestattet. Die Fenster in den Wohnungen sind 3-fach-verglast und elektrische Rollläden gehören selbstverständlich dazu. Jedes Badezimmer wird gefliest und erhält eine bodentiefe Dusche. Breitere Türen in den gesamten Wohnungen vereinfachen den Durchgang.
Folgende Wohnungen können Sie erwerben:
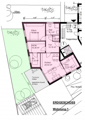
Wohnung 1 ca. 101 m² verkauft
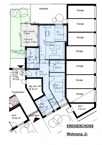
Wohnung 2 ca. 102 m² verkauft
Wohnung 3 ca. 99 m² verkauft
Wohnung 4 ca. 85 m² verkauft
Wohnung 5 ca. 90 m² verkauft
Wohnung 6 ca. 99 m² verkauft
Wohnung 7 ca. 81 m² verkauft
Wohnung 8 ca. 90 m² verkauft
Wohnung 9 ca. 78 m² verkauft
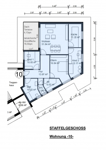
Wohnung 10 ca. 119 m² verkauft
Garage Kaufpreis € 10.000,--
Stellplatz Kaufpreis € 5.000,--
Das hintere Mehrfamilienhaus wurde ebenfalls von uns gekauft und wird im Rahmen der Neubaumaßnahme komplett renoviert.
